Theo lời khuyên của các chuyên gia thì cả việc chọn màu sơn tường nhà và chọn đồ nội thất trong...
Thiết kế trang trí nội thất
Khi xây nhà, câu nói cửa miệng của mọi người là "xây nhà đẹp".Tuy nhiên, không phải ai cũng hiểu...
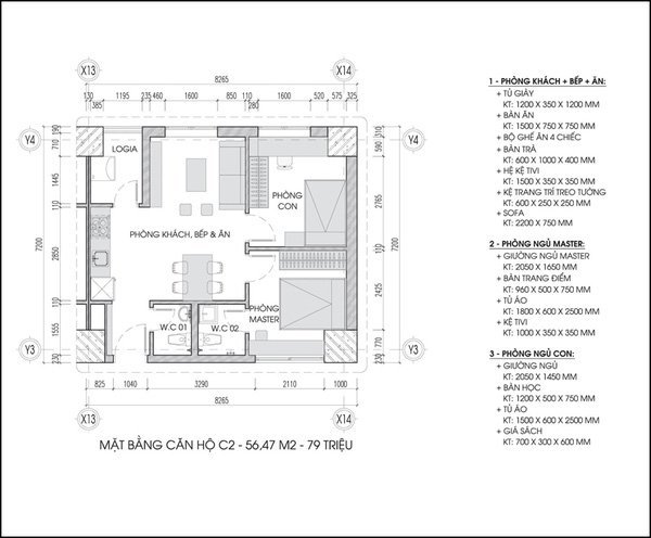
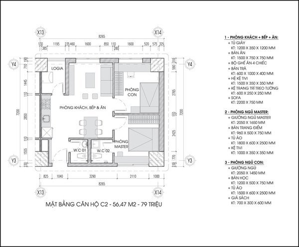
Tôi vừa mua một căn hộ có diện tích 56.47m² thông thủy tại khu chung cư. Hiện tại căn hộ này mới ch̔...
Theo lời khuyên của các chuyên gia thì cả việc chọn màu sơn tường nhà và chọn đồ nội thất trong...
Theo lời khuyên của các chuyên gia thì cả việc chọn màu sơn tường nhà và chọn đồ nội thất trong...
Khi xây nhà, câu nói cửa miệng của mọi người là "xây nhà đẹp".Tuy nhiên, không phải ai cũng hiểu...
Tôi vừa mua một căn hộ có diện tích 56.47m² thông thủy tại khu chung cư. Hiện tại căn hộ này mới ch̔...
Chỉ cần sơn sửa lại tủ, tường phòng bếp, mua thêm một vài món đồ nội thất nhỏ là bạn đ...
Gia đình tôi có 3 người gồm bố, mẹ và tôi. Hiện chúng tôi đang chuẩn bị xây 1 ngôi nhà có...
Sắp tới tôi sẽ nhận căn hộ chung cư diện tích 73m² gồm 2 phòng ngủ, 1wc như file đính kèm (căn số 6...
Gia đình tôi gồm hai vợ chồng và một bé trai, chúng tôi vừa mua căn hộ 79m² gồm 2 phòng ngủ, như file ...
Tôi sinh năm 1985, còn chồng sinh năm 1984. Hiện nay, hai vợ chồng đang xây một ngôi nhà cấp 4 mái tôn (có ả...


















